聯系我們
- 上海耐創測試技術有限公司
- 聯系人:陳工
- 電話:021-39197548
- 郵箱:zhujing@forcechina.com?
- 地址:上海市嘉定區馬陸鎮寶安公路2999弄東方慧谷50號2層

扭矩傳感器的分類及安裝方法
扭矩傳感器,又稱力矩傳感器、扭力傳感器、轉矩傳感器、扭矩儀,可分為動態和靜態兩大類,其中動態扭矩傳感器又可叫做轉矩傳感器、轉矩轉速傳感器、非接觸扭矩傳感器、旋轉扭矩傳感器等。
(一)扭矩傳感器的兩大分類
動態扭矩傳感器是一種測量各種扭矩、轉速及機械功率的精密測量儀器。應用范圍十分廣泛,主要用于電動機、發動機、內燃機等旋轉動力設備輸出扭矩及功率的檢測;風機、水泵、齒輪箱、扭力板手的扭矩及功率的檢測;鐵路機車、汽車、拖拉機、飛機、船舶、礦山機械中的扭矩及功率的檢測;污水處理系統中的扭矩及功率的檢測等等。
靜態扭矩傳感器是根據電阻應變原理把扭轉力矩產生的應變轉換成與其成線性關系的電信號的儀器,該產品制造工藝成熟,品種齊全,量程范圍廣,精度高,性能穩定可靠。
(二)扭矩傳感器的安裝使用方法
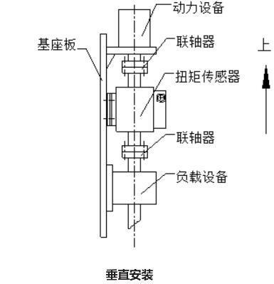
1、扭矩傳感器可水平安裝,也可垂直安裝
2、動力設備、傳感器、負載設備應安裝在穩固的基礎上,以避免過大的震動,否則可能發生數據不穩,降低測量精度,甚至損壞傳感器。
3、采用彈性柱銷聯軸器或剛性聯軸器連接。
4、傳感器中間部份不可剛性固定,要采用柔性連接
5、動力設備、傳感器、負載設備軸線的同心度應小于Φ0.03mm。
6、傳感器在垂直使用時輸入端與輸出端要有支撐隔板使傳感器不會受到動力源和負載的重力作用,已保測量精度。


另外使用扭矩傳感器時,還要注意以下幾個事項:
1. 如果要求傳動系統的軸向不因安裝了傳感器而加長,則可使用智能聯軸器--既可以檢測扭矩,又可以承擔聯軸器的功能。也就是一種帶檢測功能的聯軸器。
2. 被測傳動系統不允許加長但可以拆卸時,則可以使用套裝式扭矩傳感器--套在被測軸上即可測試。

3. 被測傳動系統既不允許加長又不可以拆卸時,則可以使用在現場組裝的卡裝式扭矩傳感器。從軸的兩側卡在軸上即可進行測試。即可長期監測也可短期檢測。與電流鉗形表相似。
4.有的測試系統既有扭力又有軸向力時則可以使用轉矩轉速軸向力三參數傳感器;既可以避免軸向力對扭力測試的干擾又可以測量軸向力的信號。
5.在高轉速或超高轉速下測試時可以使用無軸承式轉矩轉速傳感器。
6.如果被測系統為不旋轉狀態時可以使用扭矩傳感變送器。
7.如果被測系統最大值在5mN·m至1N·m時可以使用小量程轉矩轉速傳感器。













滬公網安備 31011402003414號